WX-EMSC设计参考/网络拓扑架构
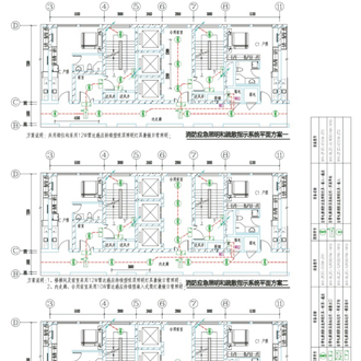
高层住宅建筑自带电源集中控制型系统
高层公寓建筑自带电源集中控制型系统
高层办公建筑自带电源集中控制型系统
地下车库建筑自带电源集中控制型系统
消防应急照明和疏散指示系统网络架构图
产品型号代码
微信咨询
服务热线
400-9700-203
15869675673 服务热线